www.czdxkj.cn    E-mail:markert@czdxkj.cn
产品中心首页 > 产品中心
BSG-2型玻璃钢净化塔
一、概述
  BSG-2型玻璃钢酸雾净化器,是净化工业生产中生产的氯化氢气体、氟化氢气体、氨气、硫酸雾、铬酸雾、氢氰酸气体、碱蒸汽、硫化氢气体、二氧化硫气体、福尔马林等水溶性气体,净化后的废气达到国家排放标准。

二、风机、水泵选配参考型号



型号 1.5 3 5 7.5 10 12.5 15 17.5 20 25 30 35 40 45 50
风量m3/h 1500 3000 5000 7500 10000 12500 15000 17500 20000 25000 30000 35000 40000 45000 50000
阻力 294-392Pa(30-40mmH2O)




型号 GBF4-72-12
4A 5A 5A 6A 6A 6A 8C 8C 8C 10C 10C 10C 12C 12C 12C
电机功率KW 1.1 2.2 2.2 4 4 4 7.5 7.5 11 11 15 18.5 18.5 30 30
余压Pa 686 450 370 686 4990 343 588 440 588 392 392 960 590 930 810




型号 PF25-20 PF25-20 PF32-25 PF40-32 PF40-32 PF50-40 PF50-40 PF50-40 PF65-50 PF65-50 PF65-50 PF65-50 PF80-60 PF80-60 PF80-60
电机功率KW 3 3 3 3 4 4 4 4 5.5 5.5 5.5 5.5 7.5 7.5 7.5

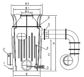
三、外形图

  1、放液阀
2、液位阀
3、吸液管
4、供液管
5、进气口
6、净化器 

四、技术性能

废气性质 初始浓度 净化效率(%)
HCL ≤400mg/m3 95-99
H2SO4 ≤400mg/m3 90-95
吸收中和液 2-6%NaOH溶液

五、尺寸表

尺寸\型号 风量
m3/h
外形尺寸 工作重量
(t)
ф ф1 ф2 h1 H b×h ф3
1.5 1500 600 600 800 1400 2400 300×300 250 0.6
3 3000 800 800 1000 1400 2400 400×300 400 0.75
5 5000 1000 1000 1200 1380 2400 400×320 450 0.9
7.5 7500 1250 1250 1450 1500 2600 500×400 500 1.2
10 10000 1450 1450 1650 1400 2600 600×400 600 1.6
12.5 12500 1600 1600 1850 1500 3000 650×650 650 2.0
15 15000 1750 1750 2000 1500 3000 700×650 730 2.4
17.5 17500 1900 1900 2150 1700 3300 750×650 800 2.7
20 20000 2000 2000 2350 1700 3300 800×650 850 3.0
25 25000 2250 2250 2550 1600 3400 800×800 900 3.5
30 30000 2500 2500 2850 1600 3400 900×800 1000 4.2
35 35000 2700 2700 3050 1800 3600 1000×800 1100 4.9
40 40000 2850 2850 3250 1800 3600 1100×800 1200 5.6
45 45000 3050 3050 3450 1800 3800 1200×900 1350 6.3
50 50000 3200 3200 3600 1800 3800 1300×900 1350 7.5

六、基础图

七、基础尺寸表

尺寸\型号 1.5 3 5 7.5 10 12.5 15 17.5 20 25 30 35 40 45 50
A 320 360 360 360 360 360                  
B 480 530 530 530 530 530                  
C             830 830 830 890 840 840 900 900 900
D             2300 2300 2300 2600 2600 2500 2600 2600 2600
E             500 500 500 570 570 570 700 700 700
F             1900 1900 1900 2000 2000 2000 2400 2400 2400
R 475 575 675 800 900 985 1000 1135 1185 1340 1435 1520 1610 1710 1785
L 1625 1650 1770 1905 2005 2335 2110 2180 2285 2017 2167 2267 2237 2337 2412


   
返回
公司简介 | 联系我们 | 在线反馈 | 工程案例
Copyright © 2012 常州市鼎鑫净化设备科技有限公司   电话:0519-86131218 86135855   传真:0519-86135855  地址:江苏省常州市南门外运村北首
三乙胺废气净化塔  玻璃钢废气净化塔  玻璃钢酸雾净化塔   苏ICP备12011840号   法律声明   技术支持:常州网络公司-江苏东网科技 [后台管理]   邮局登录
联盟站点:废气净化塔 脱水防锈油 盘式干燥机 铅玻璃