一、概述 BF型玻璃钢高浓度酸雾净化塔,是净化较高浓度的盐酸、硫酸雾及氮氧化物废气的新型净化设备,它具有净化效率高,结构紧凑、占地面积小、耐腐蚀、耐老化性能好,重量轻,便于安装、运输,管理、维修等特点。 BF型净化塔适用于化工、机械、电子、仪表等行业电镀酸洗腐蚀等酸雾废气的净化处理。
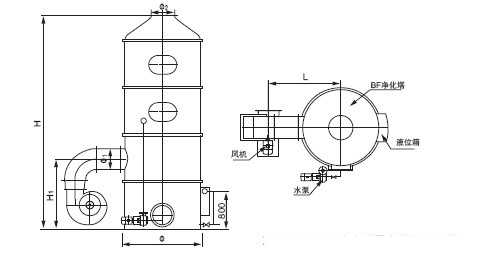
二、工作原理 废气由风机压入净化塔匀压室,首先进入鼓泡段进行鼓泡处理,然后通过多级填料,喷淋,喷雾处理,使气液两相充分逆向接触发生中和吸收反应,^后进入脱液器脱液处理后排入大气,经处理后的气体达到国家排放标准。
三、技术性能
| 废气 |
初始浓度 |
净化效率(%) |
| HCL |
≤600mg/m3 |
95-99 |
| H2SO4 |
≤600mg/m3 |
90左右 |
| NOx |
<3000mg/m3 |
80-90 |
| 吸收中和液 |
2-6%NaOH溶液 |
四、规格及技术性能
净 化 塔 |
型号 |
3 |
5 |
7.5 |
10 |
12.5 |
15 |
17.5 |
20 |
25 |
30 |
35 |
40 |
45 |
50 |
| 处理风量 |
3000 |
5000 |
7500 |
10000 |
12500 |
15000 |
17500 |
20000 |
25000 |
30000 |
35000 |
40000 |
45000 |
50000 |
| 设备阻力 |
180-200mmH2O(1760-1960Pa) |
选 配 风 机 |
型号 |
4A |
4.5A |
5A |
5A |
5A |
6C |
8C |
8C |
8C |
8C |
10C |
10C |
10D |
10D |
| 电机功率KW |
5.5 |
7.5 |
15 |
15 |
15 |
15 |
22 |
22 |
30 |
37 |
37 |
37 |
55 |
55 |
| 转速r/min |
2900 |
2900 |
2900 |
2900 |
2900 |
2240 |
1600 |
1600 |
1800 |
1800 |
1250 |
1250 |
1450 |
1450 |
选配 水泵 |
PF |
-40 |
-50 |
-50 |
-50 |
-65 |
-65 |
-65 |
-65 |
-80 |
-80 |
-80 |
-100 |
-100 |
-100 |
| 电机功率kw |
2.2 |
3 |
3 |
3 |
5.5 |
5.5 |
5.5 |
5.5 |
7.5 |
7.5 |
7.5 |
11 |
11 |
11 |
尺 寸 表 |
外径ф |
1400 |
1600 |
1700 |
1800 |
1800 |
2000 |
2100 |
2200 |
2400 |
2600 |
3000 |
3200 |
3400 |
3600 |
| 塔高H |
4600 |
4600 |
4600 |
4800 |
4800 |
4800 |
4800 |
4800 |
5000 |
5000 |
5000 |
5200 |
5200 |
5200 |
| 进风口ф1 |
400 |
450 |
500 |
600 |
650 |
700 |
730 |
800 |
900 |
1000 |
1100 |
1200 |
1300 |
1350 |
| 排风口ф2 |
400 |
450 |
500 |
600 |
650 |
700 |
730 |
800 |
900 |
1000 |
1100 |
1200 |
1300 |
1350 |
| 进风口高H1 |
1500 |
1500 |
1500 |
1500 |
1500 |
1500 |
1500 |
1500 |
1500 |
1500 |
1500 |
1500 |
1500 |
1500 |
| 工作重量(kg) |
1600 |
1800 |
2200 |
2700 |
2900 |
3200 |
3800 |
3800 |
4400 |
5000 |
6000 |
7000 |
7800 |
9500 |
五、外形图

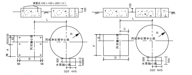
六、基础图

七、尺寸表
| 尺寸\型号 |
3 |
5 |
7.5 |
10 |
12.5 |
15 |
17.5 |
20 |
25 |
30 |
35 |
40 |
45 |
50 |
| A |
320 |
320 |
320 |
360 |
360 |
|
|
|
|
|
|
|
|
|
| B |
480 |
480 |
480 |
530 |
530 |
|
|
|
|
|
|
|
|
|
| C |
|
|
|
|
|
750 |
830 |
830 |
950 |
950 |
900 |
900 |
1000 |
1000 |
| D |
|
|
|
|
|
2050 |
2300 |
2300 |
2550 |
2550 |
2550 |
2550 |
2000 |
2000 |
| E |
|
|
|
|
|
450 |
500 |
500 |
500 |
500 |
570 |
570 |
570 |
570 |
| F |
|
|
|
|
|
1500 |
2000 |
2000 |
2100 |
2100 |
2200 |
2200 |
2900 |
2900 |
| R |
800 |
900 |
950 |
1000 |
1000 |
1100 |
1150 |
1200 |
1300 |
1400 |
1600 |
1700 |
1800 |
1900 |
| L |
2020 |
2120 |
2060 |
2194 |
2194 |
2140 |
3300 |
2400 |
2500 |
2500 |
2600 |
2600 |
2800 |
2800 |
|