一、概述 DGS-B型玻璃钢酸雾净化塔是本企业根据国外废气处理设备和我企业酸雾处理的基础上改进的新一代酸雾处理设备,该设备具有阻力小、能耗省、噪音低、处理效果高。能处理氯化氢、氟化氢、氨气、硫酸雾、碱蒸汽、硫化氢等气体。经过几年使用,净化后的废气,达到国家排放标准。
二、规格及尺寸
| 型号\参数 |
净化塔参数 |
选配风机GBF4-72 |
选配水泵 |
净化塔外形规格 |
| 处理风量 |
阻力 |
型号 |
全压 |
电机功率 |
型号 |
电机功率 |
直径 |
H |
排风口 |
进风口 |
H1 |
| 3型 |
3000 |
490 |
No.5A |
794 |
2.2 |
FYS-32 |
1.5 |
1400 |
2350 |
400 |
400×300 |
1300 |
| 5型 |
5000 |
No.5A |
765 |
2.2 |
FYS-32 |
1.5 |
1500 |
2350 |
500 |
500×400 |
1300 |
| 7.5型 |
7500 |
No.6A |
1118 |
4 |
FYS-40 |
2.2 |
1600 |
2450 |
500 |
500×400 |
1300 |
| 10型 |
10000 |
No.6A |
1020 |
4 |
FYS-40 |
2.2 |
1600 |
2500 |
600 |
600×400 |
1500 |
| 12.5型 |
12500 |
No.6A |
784 |
4 |
FYS-50 |
4 |
1800 |
3400 |
600 |
600×400 |
1500 |
| 15型 |
15000 |
No.8C |
902 |
7.5 |
FYS-50 |
4 |
1900 |
3400 |
800 |
700×650 |
1500 |
| 17.5型 |
17500 |
No.8C |
1451 |
11 |
FYS-50 |
4 |
1900 |
3400 |
800 |
700×650 |
1500 |
| 20型 |
20000 |
No.8C |
1343 |
11 |
FYS-60 |
5.5 |
2100 |
3450 |
800 |
800×650 |
1500 |
| 25型 |
25000 |
No.10C |
912 |
11 |
FYS-50 |
5.5 |
2100 |
3450 |
900 |
800×650 |
1500 |
| 30型 |
30000 |
No.10C |
1098 |
15 |
FYS-50 |
5.5 |
2300 |
3450 |
1000 |
900×800 |
1500 |
| 35型 |
35000 |
No.10C |
961 |
15 |
FYS-50 |
5.5 |
2600 |
3450 |
1000 |
1000×800 |
1500 |
| 40型 |
40000 |
No.10C |
1187 |
18.5 |
FYS-50 |
5.5 |
3000 |
3600 |
1200 |
1000×800 |
1500 |
| 45型 |
45000 |
No.12C |
932 |
18.5 |
FYS-80 |
7.5 |
3000 |
3600 |
1200 |
1000×800 |
1500 |
| 50型 |
50000 |
No.12C |
1245 |
30 |
FYS-80 |
7.5 |
3200 |
3800 |
1200 |
1290×900 |
1500 |
| 60型 |
60000 |
No.12C |
1383 |
37 |
FYS-80 |
7.5 |
3600 |
3800 |
1300 |
1290×900 |
1500 |
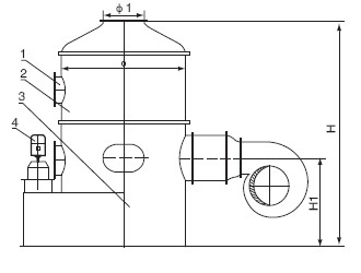
三、外形图
 1、观察孔 2、净化塔 3、循环水箱 4、循环水泵
四、技术性能表
| 废气性质 |
初始浓度 |
净化效率(%) |
| HCL |
≤400mg/m3 |
≥95 |
| H2SO4 |
≤400mg/m3 |
90-95 |
| 吸收中和液 |
2-6%NaOH溶液 |
五、基础图

六、基础尺寸表
| 尺寸\型号 |
-3 |
-5 |
-7.5 |
-10 |
-12.5 |
-15 |
-17.5 |
-20 |
-25 |
-30 |
-35 |
-40 |
-45 |
-50 |
| A |
360 |
360 |
360 |
360 |
360 |
|
|
|
|
|
|
|
|
|
| B |
530 |
530 |
530 |
530 |
530 |
|
|
|
|
|
|
|
|
|
| C |
|
|
|
|
|
830 |
830 |
830 |
890 |
890 |
890 |
840 |
900 |
900 |
| D |
|
|
|
|
|
2300 |
2300 |
2300 |
2600 |
2600 |
2600 |
2500 |
2600 |
2600 |
| E |
|
|
|
|
|
500 |
500 |
500 |
570 |
570 |
570 |
570 |
700 |
700 |
| F |
|
|
|
|
|
1900 |
1900 |
1900 |
2000 |
2000 |
2000 |
2000 |
2400 |
2400 |
| R |
800 |
850 |
900 |
900 |
1000 |
1050 |
1050 |
1150 |
1150 |
1400 |
1400 |
1500 |
1500 |
1600 |
| L |
1916 |
1960 |
2030 |
2130 |
2185 |
2425 |
2425 |
2525 |
2600 |
2850 |
2850 |
3300 |
3500 |
3500 |
| S |
1200 |
1250 |
1400 |
1500 |
1550 |
1550 |
1550 |
1650 |
1650 |
1900 |
1900 |
2300 |
2300 |
2500 |
|